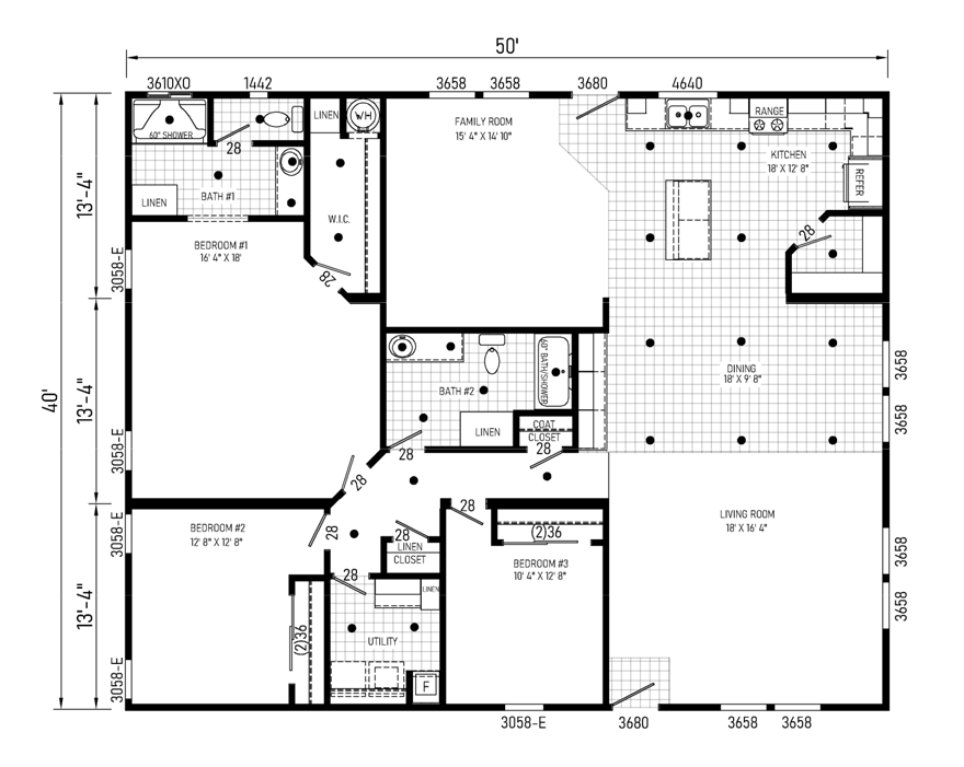
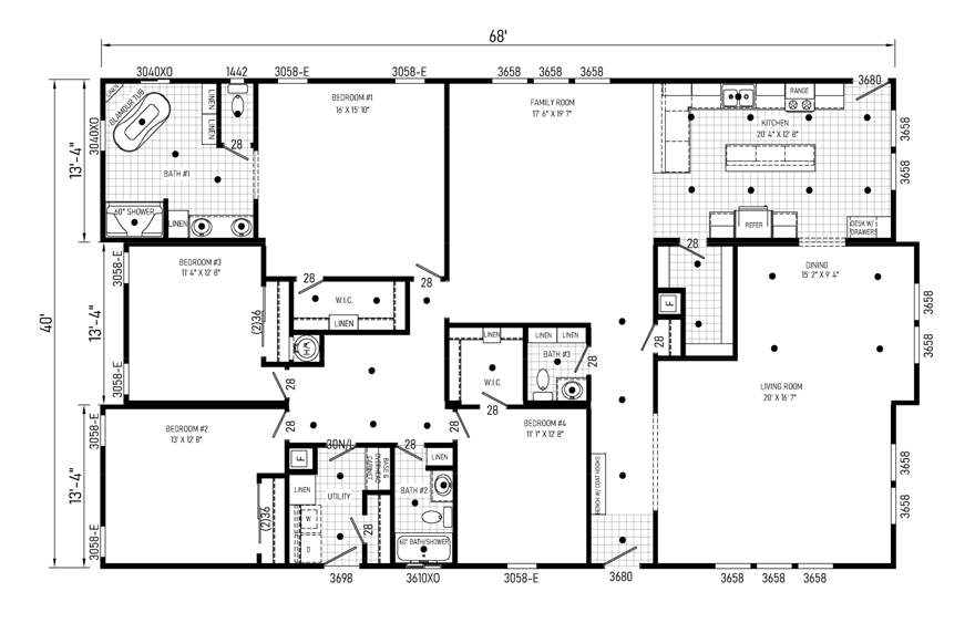
HIGH QUALITY TRIPLEWIDE MOBILE HOMES OFFER TREMENDOUS PER SQUARE FOOT VALUE
Our private label collection of Triplewide manufactured homes range from the highly compact to the very spacious and come in a variety of price points. Growing in national popularity, Multi-Sections represent the broadest category of manufactured home. Click on the “Learn More” below to learn more about each model’s standard specifications.













