
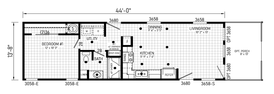
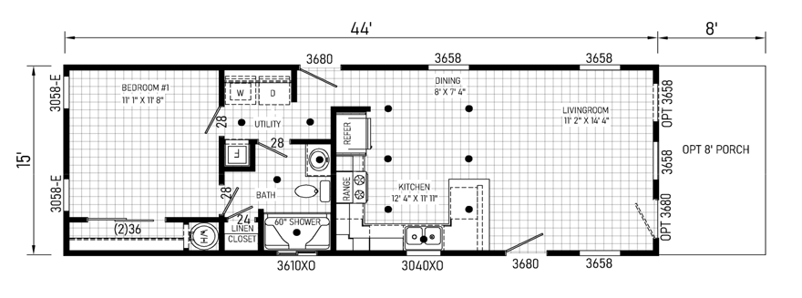
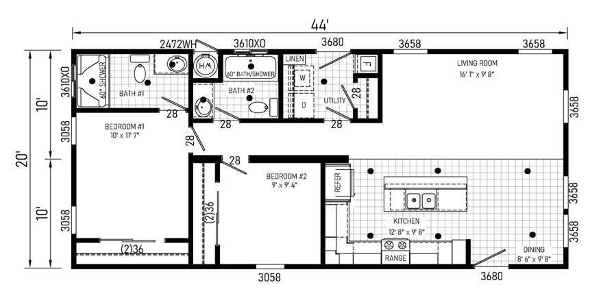
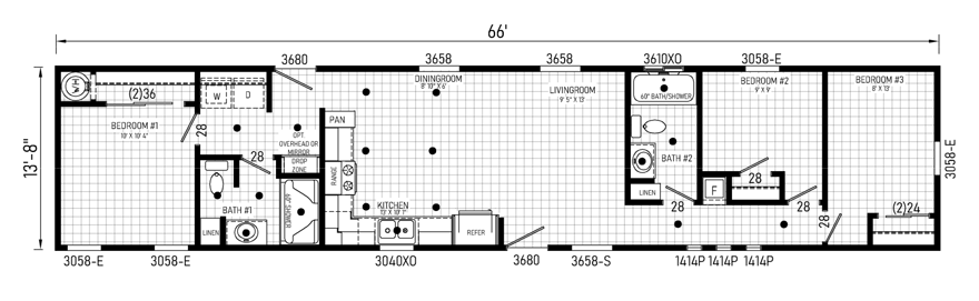
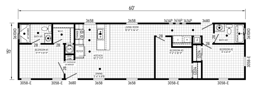
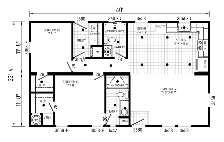
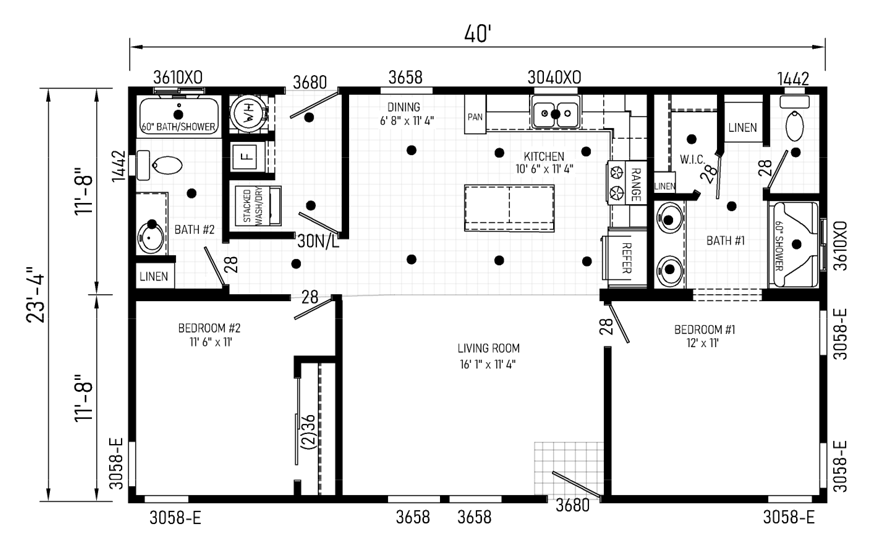
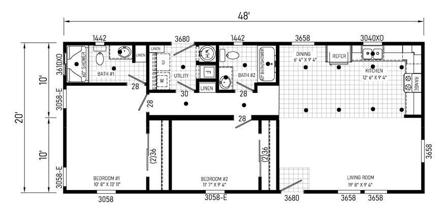
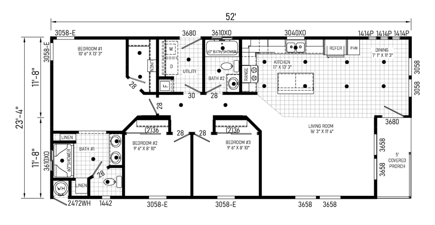
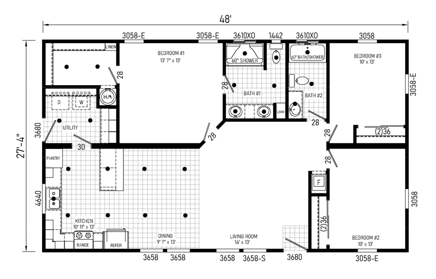
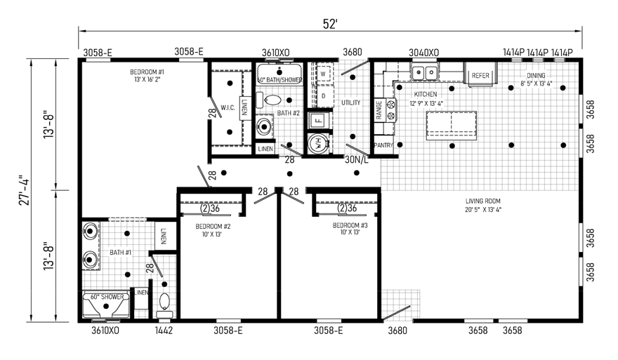
Solaris Series by Cavco Goodyear Floor Plans
Standard Features
INCLUDED FEATURES:
- Foundation Ready
- SmartPanel Vertical Siding with 5” Trim Around All Windows
- 80” Colonial Front Door with Thumb Latch Door Handle
- 9 Lite Rear Door
- Architectural Shingles
- One Hose Bib
- 30# Live Roof Load
- 6” Side Eaves & 12” Overhangs DW Only
- 16’ Dormer with Lap in Dormer Area Only – DW Only
- 2”x4” Exterior Walls with R-11
- 2”x4” Interior Walls
- 36”x10” & OR 14”x42” Std in Bathrooms (Where Applicable)
- R-30 Insulation in Ceiling
- Tape & Texture Walls (Square Corners) and Ceilings
- 8’ Flat Ceilings (9’ Flat Ceilings in Triplewides)
- 42” Hardwood Cabinets and Face Frames (Bump Outs @
- Referigerator and Range)
- Drawer Over Door Cabinet Construction
- Formica Backsplash With Crescent Edge – All Countertops
- Painted 5” Flat Baseboard & 3” Door Casing
- Wood Rods and Shelves in All Closets
- 1 Drawer Bank in Kitchen / Baths (Where Applicable)
- 200 Amp Service – Total Electric
- 40 Gallon Electric WH
- Toe Kick Registers – Kitchen & Baths
- Single Lever Faucets – Kitchen & Baths
- G.E. Stainless Steel Appliances
- Stainless Steel Dishwasher
- Stainless Steel 18 CF Refrigerator
- Stainless Steel Smooth Top Range
- Bath Mirrors – 3” Trim
- Medicine Cabinet – Standard All Baths
- Stall Shower in Primary Bath w/ Enclosure
- LED Can Lighting throughout Home
- Block & Wire for CF in LR & Bedroom #1
- 2” White Blinds
POPULAR OPTIONS:
- 100 Amp Service w/ Gas Appliances
- Coffered Ceiling
- 9’ Flat Ceilings
- 2”x6” Walls with R-19
- R-40 Insulation in Ceiling
- Awning Ready
- Solid Surface Countertops
- Spacesaver Microwave
- Many More Options Available














































